안녕하세요!
당신의 뉴스비서 찬클하우스가
오늘의 경제자료를 들고 왔습니다.

오늘의 뉴스는 태풍 '힌남노'로 인해 피해를 본 포스코의 포항제철소 고로 재가동의 내용을 준비했습니다.
1. 뉴스 요약 - '포스코, "포항제철소 고로 오늘부터 순차 재가동"'을 요약해드립니다.
2. 뉴스에 없는 자료 - '제철소의 핵심 고로'와 '고로 중단이 포스코에 미치는 영향'을 모아서 보여드립니다.
3. 내 돈과 연관 짓기 - '포스코의 영업이익 추정해보기'을 소개해드릴게요
그럼 오늘의 경제뉴스 브리핑 시작하겠습니다.
1. 뉴스 요약
포스코 "포항제철소 고로 오늘부터 순차 재가동"
포스코는 제11호 태풍 '힌남노'로 인해 가동이 중단된 포...
www.ytn.co.kr
- 태풍 '힌남노'로 인해 가동이 중단된 포항제철소의 고로를 10일부터 재가동하기 위한 복구작업을 차질 없이 진행 중이다.
- 포스코는 고로 가동에 필요한 스팀 공급을 위해 액화 천연가스 발전소를 가동하고, 10일부터 순차적으로 고로 3기의 재가동을 시작한다고 밝혔다.
- 고로는 5일 이상 가동을 멈출 경우 재가동에 수개월이 소요되어 수천억 원의 경제적 손실로 이어질 수 있어 포스토에서는 재가동에 총력을 기울이고 있다.
2. 뉴스에 없는 경제자료
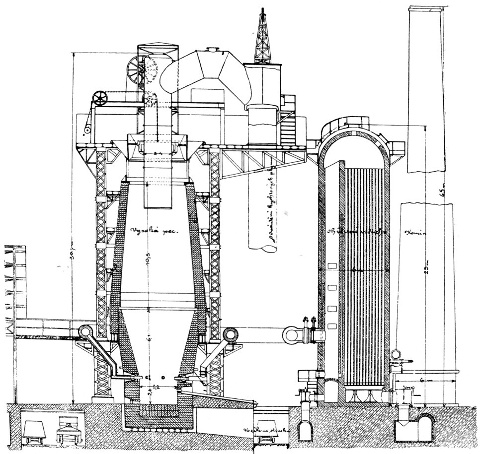
1) 제철소의 핵심, 고로(Blast Furnace, 高爐)
고로는 쇳물을 만들기 위해서 필요한 원재료인 철광석, 석탄, 석회석 등을 넣고 열을 가해
가공하기 좋은 상태인 쇳물로 만드는 장치입니다.
보통 높이가 10~25미터에 이르는 원통형의 모양을 띄고 있고 위로 광석을 넣어 아래로 쇳물을 받아내는 형태이죠
한국에서는 1973년 6월 8일에 고로에 불을 붙여 다음날인 6월 9일에 쇳물을 만들기 시작했습니다.

고로에서 1,500도 이상의 온도로 철광석을 가열해서 만든 쇳물로 철강을 만드는 것이죠

2) 고로 운영 중단이 포스코에 미치는 영향
태풍 '힌남노'로 고로 운영이 중단되자 지난 6일 POSCO홀딩스는 생산중단 공시를 냈습니다.

고로의 중단에 따라 제강 및 압연 등 전공정이 중단되었다는 내용이 주요 내용입니다.
전공정에 해당하는 분야의 매출액은 18,494억 원이 나오는 사업이었는데 포스코의 매출액에 대비했을 때 24,2%입니다.
현대차증권의 박현욱 연구원은 '포스코에서는 하루에 4만 톤 정도의 쇳물을 생산한다. 톤당 100만 원 수준임을 감안하면 하루에 400억 원의 매출 손실이 발생할 것으로 추산한다.'라고 이야기했습니다.
지난 6일부터 고로의 생산이 중단되었으니 지금까지 4일간의 생산중단에 따른 매출 손해액은 1,600억 원으로 예상해 볼 수 있습니다.
정확하게 추산하기 힘들지만 박현욱 연구원의 추산에 따르면 매출액의 8.65%가 손실을 봤다고 할 수 있을 것 같습니다.
이렇기에 포스코에서는 빠르게 고로를 재가동하기 위해서 노력하고 있고 10일 재가동을 목표로 진행하는 것이죠
3. 내 돈과 연관 짓기
포스코 영업이익 추정해보기
뉴스에 없는 자료에서 본 것처럼 매출액을 추정하는 것은 '가격(Price)'과 '판매량(Quantity)'입니다.
여기에 '비용(Cost)'을 빼면 영업이익이 나오게 되는 거죠
쉽게 공식으로 표현해보자면 이렇습니다.
가격(Price) * 판매량(Quantilty) = 매출액
매출액 - 비용(Cost) = [가격(Price) * 판매량(Quantilty)] - 비용(Cost) = 영업이익
각 단어의 앞글자를 따서 P*Q-C, 혹은 PQC의 관점이라고도 합니다.
이 PQC의 관점이 기업의 주가에 영향을 미치는 요소중 하나인 실적을 추정하는 방법입니다.
자세하게 추정하는 것이 기술이지만 여기서는 포스코를 통해 어떻게 하는지 간단하게 알아봅시다.
먼저 P(가격)는 여기서는 쇳물의 가격입니다.
이번 피해로 쇳물의 가격이 올라가지 않을 것이라는 가정을 한다면 P는 유지입니다.
다음으로 포스코는 이번 고로 중단으로 인해 생산량이 줄었습니다.
생산량이 준다는 것은 판매량이 줄어든다는 것으로 Q(판매량)가 줄어들 것으로 예상됩니다.
마지막으로 C(비용)의 증가가 예상됩니다.
아래의 뉴스를 볼 때 빠른 피해복구를 위해 일당을 125만 원을 주면서까지 기술자를 모으고 있고 직원들 역시 연휴를 반납하고 피해를 복구하고 있죠
″태풍 피해복구 일당으로 125만 원″…포스코 구인문자 화제
태풍 힌남노로 큰 피해를 본 포항제철소가 복구 일당으로 '125만 원'을 제시해 화제입니다. 어제 오후...
www.mbn.co.kr
그렇기에 인건비가 이전보다 증가할 것이 예상되는 것이죠
따라서 P는 유지, Q는 감소, C는 증가이기에 PQC공식에 따르면 영업이익은 감소할 것으로 예상된다고 할 수 있습니다.
기업은 결국 돈을 벌기 위해 존재하는 곳이라 영업이익이 감소하는 것이 큰 타격입니다.
영업이익이 감소하면 주가가 하락할 가능성이 크죠

실제로 포스코를 보유하고 있는 포스코홀딩스의 주가는 6일 태풍 피해에 따른 생산중단으로 7일 주가가 떨어졌습니다.
영업이익이 줄어들 수 있다는 것이 주가 하락에 큰 영향을 미쳤다고 할 수 있는 사례이죠
이런 식으로 뉴스를 보시면서 이 기업은 돈을 잘 벌 수 있을까? 없을까?를 생각하면서 뉴스를 보시면
내 돈과 관련짓기 쉬워질 겁니다.
이 과정이 어려우시다면 뉴스비서 찬클하우스가 도와드릴게요!
경제뉴스에 있는 자료들을 한눈에
내일도 당신의 뉴스비서 찬클하우스가
다양한 자료를 모아 올게요

'경제뉴스 모아보기' 카테고리의 다른 글
| 변동금리 대출에서 고정금리 대출로 갈아타는 '우대형 안심전환대출' 출시 (0) | 2022.09.13 |
|---|---|
| 스타트업 회사들, 연이어 권고사직 통보 (0) | 2022.09.12 |
| 넷플릭스 오리지널 '수리남' 공개 (2) | 2022.09.11 |
| 금리를 인상하는 미국과 유럽 (4) | 2022.09.09 |
| 애플, 아이폰 14 공개 (2) | 2022.09.08 |